发帖
 找回密码
 注册

快捷登录

手机号码,快捷登录

手机号码,快捷登录

搜索
4 2
开启左侧

简洁、素雅之下更多的是自由和舒适

  [ 复制链接 ]
家居装修 2777 4 2020-4-1 16:01:19
middle_1200x800-113813_v2_10551564457893977_9b914c83e8a96520b5b04771aba10ecc.jpg

-业主-
一位有想法、热爱生活、心地善良、精致的甲方大大。
原本找我们只做施工的客户,最后舍弃原始设计单位选择了我们做设计+施工。
-设计师-
硬装设计师是一位集才华于一身的青年设计师,对于自己的专业,有自己的独特见解。
软装设计师是名副其实的辣妈,辣妈很有想法,至理名言只有搭配得当,任何风格都可以融为一体。NICE,悄悄说一句:想要知道重庆哪里东西好吃,请CALL她。

简洁而精致的
简单而快乐的
简明而富有美感的
其实生活就是这样摆脱所有的喧嚷
达到一种纯精神的境界
middle_1280x839-114029_v2_20701564458029969_a7118f962a60b808642c39551e6129c9.jpg
楼盘名称:龙湖·原山时光
户型面积:85㎡
设计风格:日式
格局分布:三室二厅一厨二卫
硬装设计:李  科
软装设计:彭沥黎
整体费用:31W
middle_1280x853-114113_v2_11991564458073965_d83b2708bddb5c7172196088aac23f66.jpg
风格定位:功能至上,舒适,自由
客户需求:喜欢舒适与美观,其次需要一种特别的感觉,一种能从表象感受到的底蕴。
设计亮点:运转自如的生活在这个家。就算精致的人儿也能体面的宅一天。
middle_1080x695-114221_v2_15591564458141119_9725ec898188b3e5417963fb2c441c91.jpg
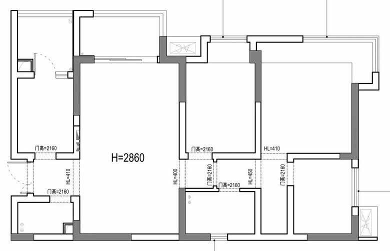
原始户型图
middle_860x551-114259_v2_14421564458179165_6c390f2baea90f467b5ab2f6de3403a5.jpg
客厅living room
middle_1080x1620-114523_v2_11141564458323892_1b14563cc0941e355632296580b2226d.jpg

回到家,开门第一眼看见的就是那原木包裹的景窗(这里提取自中式园林设计的设计元素)。每每看见这样的造型,总是让我想起那句“超以象外,得其环中,持之匪强,来之无穷”超出表象总能看见更多,恰如景窗里看见的只是一隅。
middle_1080x720-102519_v2_14721564712719094_f8017565aab18bdca3581ca8d5648040.jpg

此空间考虑后期的多种情景模式,事先设计好了电视机位置以及电动投影幕布盒,电视墙定制收纳柜和地柜,顶面木饰面延伸至餐边柜顶部,在视觉上有效的加长了电视墙的尺寸。剩余电视墙留白处理(留白总是能让人有更多的空间去想象)。
middle_1080x720-102554_v2_14701564712754568_3c3debe53c193e79666b4d7b289467d3.jpg
middle_1080x1620-102640_v2_19791564712800546_ed03cd8fe3119554ed6fcb9de490f298.jpg
沙发边几上的小吊灯金属的灯头和墙面的挂画很好的平衡了沙发背景墙,而不会让重心往圆形景窗倾斜,小吊灯也让阅读变得更加从容。沙发另外一边考虑一颗高大而枝叶稀疏的植物来添加景窗的趣味性。 middle_1080x1620-102726_v2_13811564712846386_b18d357fa5dd5854ad5c029cb6af1ad3.jpg

餐厅  厨房 dinning&kitchen
middle_1080x1620-103000_v2_12241564713000082_d240c9e17cc00d93df27c2f52a4de378.jpg

餐厅考虑到长期居住的人员结构,就配备了4人位。
餐边柜也让收纳变得更加方便,整个区域也不会显得那么杂乱。
middle_1080x720-103157_v2_14291564713117454_a891e7322c8588e22ea93c3dd40846cb.jpg

并没有用常规的挂画,而是利用书架,把这里的软装空间留给业主自己来填满,也暴露了业主的女神-欧阳娜娜。在这里喝茶,看书,享受生活,也向往这种生活。
middle_1080x781-103330_v2_13641564713210213_382dd633583edbe4142f6f0847eb91dc.jpg
middle_1080x720-103330_v2_11241564713210213_cfd16a4a0e19526b2837cc5c46a0c445.jpg
middle_1080x720-103330_v2_10491564713210221_d5da6c10a1f546e770b4ad8c621a29d6.jpg

厨房配备了海淘自日本的烤箱、双排操作台设计、软水机、嵌入式洗碗机、方太超大功率抽油烟机,半嵌入式大双开门冰箱,这样的厨房以后男女主人会挣着做饭吧,哈哈哈”

主卧 bedroom
middle_1080x720-103647_v2_12461564713407572_213c1f3d89240ec17e911f00526518de.jpg

因为原始的院馆改为书房兼衣帽间,所以主卧衣柜就只保留了原始飘窗上那一小部分。
middle_1080x720-103739_v2_10281564713459968_aeb4dead93a852571522bccef876e5ef.jpg

原始床背景也因为原始转角飘窗显得短而小,所以采用石膏板隔墙缩短了转角飘窗,并定制了套柜墙入进墙面,便于收纳。从平面构成来说,也丰富了背景墙的元素,在床头柜上配备一个小小灯又丰富了这一个局部空间的趣味性,而且实用性也极高。 middle_1080x781-103843_v2_20811564713523934_6744c140c86427c965e65b69e6027c4d.jpg

middle_1080x608-114341_v2_11791564458221291_82f9f46fd6861c391122eabc7cb59f75.jpg


──── 2人觉得很赞 ────
2020-4-1 16:44:44
前排支持下
2020-4-1 16:55:15
谢谢
2020-4-7 11:57:05
素、雅
您需要登录后才可以回帖 立即登录
高级模式
返回